Explore los recursos disponibles para nuestros productos de energía crítica
Herramientas Digitales
Explora herramientas digitales para la educación y la selección de equipos críticos de energía.

Visualiza toda nuestra línea de productos, folletos, hojas de datos y documentos técnicos en un solo lugar.

Utilice nuestros modelos interactivos de realidad virtual para ver cómo los productos y soluciones de ASCO resuelven desafíos críticos de energía en diferentes tipos de aplicaciones.
Biblioteca de Videos
Biblioteca de Videos
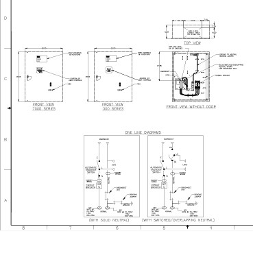
Interruptor de transferencia serie 7000 de ASCO
Los interruptores de transferencia ASCO serie 7000 proporcionan soluciones líderes en el sector para transferir cargas críticas a fuentes de alimentación de emergencia.
Soluciones de interruptores de transferencia para aplicaciones de entrada de servicio
Los fabricantes ofrecen interruptores de transferencia automática con equipo de desconexión de servicio eléctrico integrado. En este video explicamos sus ventajas, los requisitos del sector para su diseño y describe las características de respuesta.
Aspectos básicos del mecanismo de transferencia
El componente central de todo interruptor de transferencia de potencia de tipo contactor, es su mecanismo de conmutación. En los mecanismos ASCO, los componentes esenciales incluyen contactos eléctricos, operadores accionados por solenoide y características que mitigan el arco eléctrico y sus efectos. Este video muestra las características y operaciones esenciales de los mecanismos de conmutación de transferencia.












