Discover EcoStruxure™ IT Advisor
Discover EcoStruxure™ IT Advisor
Data centers are complicated. Let’s simplify it!
Say goodbye to complex spreadsheets and embrace a more streamlined approach.Make the most of every square meter and kW by using EcoStruxure IT Advisor for your data center management.IT Advisor enables data center managers to achieve operational excellence through modeling, essentially a digital twin of their data center, along with asset tracking, capacity optimization, and colocation-specific capabilities.The software is available to meet your deployment needs either as an on-premises or cloud-based solution.
Get started with EcoStruxure IT Advisor
- Get access to the IT Advisor server
- Start your IT Advisor journey in the web client
- Download the desktop client
- Learn from our Customer Success Managers how to make the most out of the tool
What IT Advisor can do for you
What IT Advisor can do for you
Choosing the right solution

IT Advisor is a next-generation data center planning, modeling, and optimization software that enables you to react to events before they escalate into high-visibility problems, allowing you to be the person your customers and internal stakeholders love to never hear from.
What’s new
What’s new
EcoStruxure IT community
EcoStruxure IT forum:Collaborate with data center professionals from all over the world to connect and exchange knowledge.Join the EcoStruxure IT forumEcoStruxure IT help center:Get access to the latest release notes, product documentation, and information about upcoming features for IT Advisor.Visit the Help Center
Support contract benefits
Your license includes added benefits like:
- Feature enhancements
- Security updates
- More frequent updates
- Advanced support
- Genome support
Visit EcoStruxure IT Entitlements Portal
IT Advisor - three modules
IT Advisor - three modules
Base module
Enables customers to create a digital twin of the data center to manage their asset's physical location. Provides a sustainability dashboard that aligns with sustainability objectives.
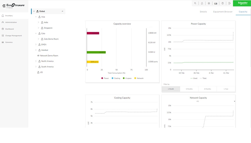
Capacity module
For capacity management of power, space, and cooling, it enables right-sizing the data center and planning for future expansion.
Change module
Enables the integration of workflow management for your IT physical infrastructure, streamlining change processes.
Explore Base module
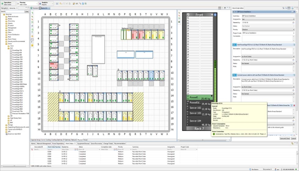
Accurate visualization of your centralized environment with a digital twin
- Gain an overview of data center operations
- View racks and asset placements and see how assets are connected
- Easily identify the rack PDU outlet your server is connected to, simplifying power connections
- Get an overview of current network connections
- Access device data within the physical layout for quick access to device details and asset attributes
- 3D view for a more immersive experience
Explore Capacity module
IT equipment guidance
Instant server placement recommendation through real-time analysis of available data center capacity.
Explore Change module
Integrated workflow management for IT physical infrastructure
- Create work orders and automatically generate tasks to move, add, or change IT and infrastructure equipment.
- Users can now design and set up both parallel and sequential workflows and the dependencies between the individual tasks.
Additional Solution: EcoStruxure IT Advisor – Cooling Optimize
The challenge is to keep mission-critical devices in a data center optimally cooled while at the same time trying to be more sustainable and save energy costs.
- Uses machine learning to automatically and dynamically match cooling output to IT load in real-time
- Continuously optimizes airflow in the data center facility, delivering improved reliability and availability
- Reacts to real-time data, eliminates hot spots, and identifies facility risks
- Delivers quantifiable and operational benefits across your facility portfolio
- Utilize NetBotz™ wireless and wired environmental monitoring sensors to incorporate temperature/humidity monitoring in the solution
Explore Cooling Optimize products
Explore software services and custom solutions
Seamless software deployment
Our Installation and Configuration services leverage skilled software engineers to establish your EcoStruxure IT software solutions, following industry best practices.This can be carried out either onsite or remotely, allowing you to focus on the solution's results rather than the installation and configuration process.
Explore Installation and Configuration
How-to videos
How-to videos
EcoStruxure IT Advisor How to: Asset Provisioning with IT Advisor
EcoStruxure IT Advisor How to: Finding space for potential tenant in a colocation data center
EcoStruxure IT Advisor How to: How to optimize cooling with IT Advisor
Customer success stories
Customer success stories
Tanishq Jewelry Chain leverages EcoStruxure to keep stores connected
Tanishq Jewelry, an India-based innovator in the jewelry industry, is upgrading its retail IT infrastructure including EcoStruxure IT for simplified remote monitoring and management. Tanishq wants to provide simplified, dependable IT support and improved uptime to deliver a seamless in-store shopping experience for its customers.
Puget Sound Energy on keeping customers energized: How EcoStruxure IT enables 24/7 Data Center Resiliency
Tasked with keeping their customers energized to ensure the continuity of critical services like Emergency Medical Services, Puget Sound Energy relies on the EcoStruxure IT data center infrastructure management (DCIM) solution for comprehensive visibility.
EcoDataCenter Utilizes sustainable energy
EcoDataCenter is innovating sustainable colocation data center design. With the efficiency gains from EcoStruxure™ IT Advisor, EcoDataCenter achieves a remarkably low power usage effectiveness of 1.15 and can optimize the use of their hydroelectric power.
Additional resources
Additional resources






